Previous slide Next slide

Accommodations in Cloverdale

Vine Ridge is designed with simple elegance and a holistic approach enabling residents to stay engaged in all facets of life. With intercom alert systems and safety measures in place, we offer a non-intrusive environment that protects dignity, independence and peace of mind for residents and family members alike.

First floor apartments

This is a complete building plan of the first floor.

Petite Sirah Studio

These are studio apartments.

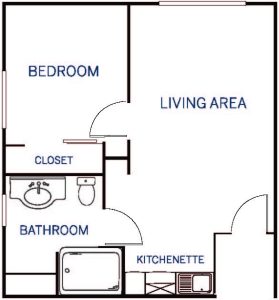
Cabernet One-Bedroom

These are one bedroom apartments.

Pinot Noir Grand One-Bedroom

These are larger scaled one bedroom apartments.